Sistemul cu design francez „S”
Categorie
Categorie
Sistemul cu design francez „S” combină trei lățimi ale panourilor, 25/100/150 mm, care la instalare creează un aspect integru și neted.
Ele sunt inofensive pentru oameni și animale, deoarece sunt fabricate din materiale ecologic curate, neinflamabile, care nu emit substanțe nocive la încășlzire.
Ele pot fi oformate în orice mod, pot fi alese dimensiunile și culoarea care corespund cel mai bine gamei de culori a interiorului. Tavanele din aluminiu CESAL au o rezistență sporită la umeditate, ce permite de a le instala în încăperi cu orice destinație: în case, apartamente, magazine, restaurante și cafenele, săli de sport, bazine de înot și saune, depozite. În același timp panourile de tavan nu se comprimă și nu se extind, dar rămân în forma concepută inițială pentru mulți ani.
Popularitatea tavanelor suspendate este asigurată la fel și de prețul lor accesibil și simplitatea instalării, datorită căreia într-o perioadă scurtă de timp puteți crea un tavan frumos și practic în orice încăpere.
Cu ajutorul panourilor perforate cu membrană textilă nețesută, lipită pe suprafața interioară a lamelelor se asigură un nivel optim de control acustic în încăperi.
Sistemul de tavane suspendate cu design francez „S” formează deasupra panourilor un spațiu pentru instalarea conductelor de aer, cablurilor electrice și a altor comunicații necesare pentru încăpere. Panourile sunt detașabile, ceea ce oferă accesul deplin la echipamentele și comunicațiile instalate deasupra tavanului.
Tavanele suspendate sunt atât de durabile, încât pot servi mai mult de 20 de ani. Este important de reținut că acestea trebuie deservite cu atenție. Astfel de tavane nu adună praf, nu sunt expuse acțiunii mucegaiului și a ciupercilor, astfel este suficient de a le șterge suprafața cu o cârpă umedă (fără utilizarea de agenți de curățare abrazivi) în dereticarea încăperilor.

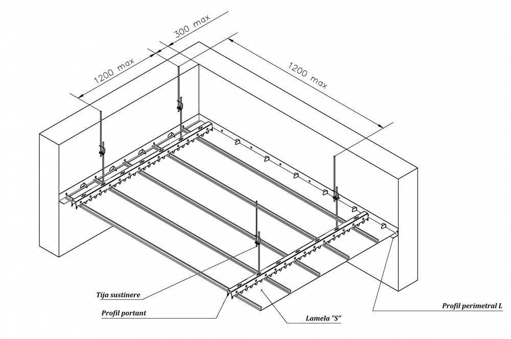
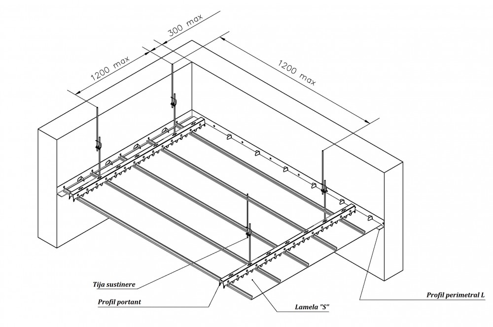
Principalele elemente portante ale tavanelor suspendate din aluminiu sunt profilele (ghidajele) care formează carcasa portantă.
Profilele pot fi fixate direct pe plafon sau se pot utiliza tije de suspendare cu arc și/sau mini-tije. În construcția profilului sunt prevăzute lacăte speciale, în care se fixează panourile decorative (lamelele), construcția lacătelor permite demontarea rapidă a lamelelor decorative, fără deteriorarea acestora.

TIPURI DE LAMELE
CONSTRUCTIA

DIMENSIUNILE LAMELELOR, mm
|
Lamela |
Modul |
Material |
|
14 x 25 |
25 |
0,4-0,6 Al |
|
14 x 100 |
100 |
0,4-0,6 Al |
|
14 x 150 |
150 |
0,4-0,6 Al |
Lamelele pot fi livrate în orice lungime de la 1000 mm la 6000 mm, traversa are o lungime standard de 4000 mm.
CONSUM MATERIALE /M2
|
|
Unit |
S25 |
S100 |
S150 |
|
Lamela |
m.l |
40,00 |
10,00 |
6,67 |
|
Traversa |
m.l |
1,0 |
1,0 |
1,0 |
|
Tija de sustinere |
buc. |
1,0 |
1,0 |
1,0 |
Consumul altor elemente depind de proiect.
POSIBILITATEA DE PERFORARE
Pentru a asigura un control acustic optim în încăpere, lamelele pot fi perforate. În calitate de funcție standard, lamelele perforate sunt prevăzute cu un material nețesut fonoabsorbant, lipit pe suprafața interioară a lamelei.
Perforarea poate fi dreaptă și diagonală.
Sunt posibile și alte variante de perforare (găuri pătrate) și chiar desene la scară (pentru mai multe informații vă rugăm să contactați departamentul nostru de vânzări).

PROFIL PERIMETRAL:

SIGURANȚĂ ANTIINCENDIARĂ (REZISTENȚĂ LA FOC)
Toate sistemele de tavane CESAL se referă la materialele din grupul C0 (neinflamabile).
Domeniul de utilizare a tavanelor CESAL conform documentului normativ în construcții NCM E.03.02-2014 (MCH 21-01-2014) “Siguranța antiincendiiară a clădirilor și structurilor „
Pentru proiecte mari este posibil de vopsit în orice culoare. "RAL Classic"
Certificate
| Certificat | Data |
|---|---|
|
|
2020-03-13 |
|
|
2017-03-22 |
|
|
2017-03-22 |